Moradia térrea, individual, com 269 m2, inserida num lote de 546 m2, composta por 3 suítes, 1 quarto/escritório, 1 casa de banho de serviço, sala, cozinha, lavandaria e garagem fechada para 2 viaturas.
Com portões automáticos, pode entrar confortavelmente na garagem, sair diretamente no alpendre do jardim interior, acedendo então à zona social da sala/cozinha ou diretamente ao jardim principal.
Cozinha com ilha de degustação com vista sobre o alpendre, em open space com a sala, apenas separadas por ripes de madeira e porta oculta se preferir fechar. Equipada com placa de indução, exaustor, forno e micro-ondas “Balay”, frigorífico “Siemens” e máquina de lavar loiça “Bosch”.
Uma casa com armários embutidos em todos os corredores de circulação, em todos os quartos, escritório, lavandaria e garagem.
Tem bomba de calor para aquecimento de águas e ar-condicionado. Pré-instalação de lareira e aspiração central.
Com circulação pedonal a toda a volta, esta casa conta com muita privacidade, uma boa área de jardim com excelente exposição solar e uma arquitetura moderna, baseada na simplicidade, funcionalidade e harmonização dos espaços.
As sua linhas e formas simples, aliadas à predominância dos vãos envidraçados com caixilharias em alumínio, com as brisas solares, a vegetação envolvente e a calçadinha portuguesa, acrescentam um charme único à propriedade. Os interiores minimalistas, onde predominam os tons pastel e onde se misturam as madeiras com os granitos, iluminados naturalmente através das várias claraboias e envidraçados, trazem aconchego e bem estar a esta habitação.
Com paragem de autocarros a 500 metros e de comboios a 850 metros, esta moradia está localizada a 5 km do centro de Famalicão, a 15 km de Sto Tirso, Braga ou Barcelos.
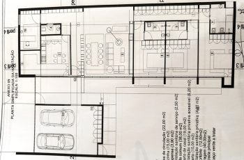
Áreas:
Área de circulação: 22 m2
Cozinha: 15 m2
Despensa: 4 m2
Sala: 38 m2
Escritório: 12,5 m2
Inst.Sanit. de serviço: 2,5 m2
Quarto/Suíte: 19 m2; IS: 6,20 m2
Quarto/Suíte: 15 m2; IS: 4 m2
Quarto/Suíte: 15 m2; IS: 4 m2
Garagem: 40 m2
Espaço exterior: 277 m2
Marque a sua visita.
Margem Imobiliária
Mediação na compra, venda e arrendamento de imóveis.
Oferecemos acompanhamento em todo o processo, tanto aos compradores, como aos vendedores, desde a primeira reunião até à conclusão do negócio/escritura.
Na compra e na venda, que seja um bom negócio!
A Margem Imobiliária existe para o bem servir, adaptando-se às suas necessidades da forma mais personalizada e profissional que cada situação requer.
O objetivo não é que saiba o nosso nome, é merecer que nos trate por “a minha imobiliária“!
- ReferênciaMP0362M4
- ObjetivoVenda
- Tipo de ImóvelMoradias
- EstadoComo Novo
- Quartos4
- Casas de Banho4
- Ano de Construção2020
- Área Útil225 m2
- Área Bruta-
- Área de Terreno546 m2
- Licença de Utilização-
- Acessibilidade a pessoas com mobilidade condicionada
- Água da companhia
- Alpendre
- Ar Condicionado
- Árvores de fruto
- Aspiração central - Pré Instal.
- Boa exposição solar
- Bomba de calor
- Bons Acessos
- Caixilharia em Alumínio
- Casa térrea
- Circulação a toda a volta
- Cozinha Equipada
- Cozinha Mobilada
- Despensa
- escolas e serviços
- Estores Brisa Solar Elétricos
- Igreja
- Infantário
- Infraestruturas
- Jardim
- Lavandaria
- perto de transportes
- Portão automático
- Roupeiros embutidos
- Saneamento
- soalho flutuante
- Suite
- Terreno Plano
- Vedado/muro
- Vídeo Porteiro
- Vidros Duplos
- zona habitacional



